一、齿耙格栅简介:
齿耙格栅格栅由许多小齿耙相互连接组成一个巨大的旋转面。其工作原理是经传动装置带动这个由小齿耙构成的旋转面循环转动,在小齿耙循环转动的过程中将截留的栅渣带出水面至格栅顶部。

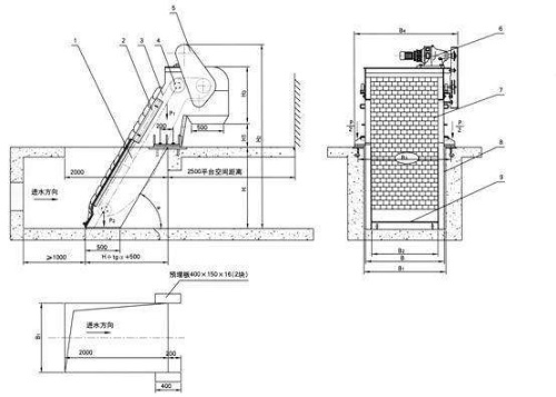
二、齿耙格栅安装:
在安装齿耙格栅时,应将整台机器吊起,不需要其他支撑力。200*250*12mm钢板嵌在地平线上,在安装实用新型时,框架两侧的支承钢板整体焊接在一起。
在基础上安装格栅去污机应是稳定的;对称网格对称中心和轨道中心应与垂直表面保持,网格的轨侧要求应与栅栏平行;啮合齿的间隙不应大于0.5mm的接触深度应不小于35mm;网格操作位置应该是正确的干扰,跳转现象。超载装置应敏感可靠,电网上的垃圾不应掉回沟里。安装其他类型的去污机应符合设计要求。
三、齿耙格栅结构图:

四、齿耙格栅应用因素:
(1)在大型污水处理厂或泵站前的大型格栅,一般应采用机械清洁.
(2)机械格栅不宜少于2台,如为I台时,应设人工清除格栅备用.机械格栅的动力装置一般宜设在室内或采取其他保护设备。
(3)过栅流速一般采用6-1.Om/s,
(4)格栅前渠道内的水流速度一般采用U.4-o.gm/s.

(5)格栅倾角一般采用450一750。人工清除的格栅倾角小时,较省力,但占地多。
(6)通过机械格栅的水头损失一般采用0.08一。.15m.
(7)格栅间要设置工作台,台面应高出栅前较高设计水位0.5m。工作台上应有安全和冲洗设施。
五、齿耙格栅保养:
1、齿耙格栅在运转过程中,如有纤维杂质等阻塞耙齿链时,应及时清理,以免影响设备的正常运转。

2、应根据垃圾量的多少,定期清理挂在卸料板上的垃圾。
3、齿耙格栅在运转中出现电机正常运转而耙齿链不运转,则说明过载导致安全销切断,须切断电源更换过载安全销。
4、有关关减速箱的维护、检修、按《减速机使用说明书》进行。
5、每月给轴承、链条加注黄油。
六、齿耙格栅原理:
齿耙格栅是由一种与众不同的齿耙装配成一组旋转格珊链。在电机减速机的驱动器下,齿耙链开展逆流水方位旋转健身运动,将飘浮在河面上的泥渣捕捞,齿耙链运行到机器设备的上端时,因为槽轮和直轨的导向性,使每一组齿耙中间造成相对性自清健身运动,绝大多数固态化学物质靠作用力落下来。另一部分则借助给矿机的往复运动把粘在齿耙上的脏物清理整洁。
按流水方位齿耙链相似于格珊,在齿耙链轴上安装的齿耙空隙能够依据应用标准开展挑选。当齿耙把流体力学中的固体悬浮固体分离出来后能够流水通畅穿过。全部工作中全过程是持续的,还可以是间歇性的。

七、齿耙格栅特性:
齿耙格栅的优势是自动化技术水平高、分离出来高效率、驱动力耗费小、没有噪音、耐蚀性能好,在没有人照看的状况下可持续稳定工作。
本机器设备能够依据客户必须随意调整机器设备运作间距,完成规律性运行;能够依据格珊前后左右液位仪差自动控制系统机器设备的起停;而且有手动式操纵作用,以便捷维修。客户可依据不一样的工作中必须随意采用。
八、齿耙格栅性能参数及型号选择:
齿耙格栅为依据客户必须的过水流量及土建工程渠宽、渠深、必须齿耙空隙等要求订制。机器设备规格型号按机宽规格分XRD300-3600型。机宽超出1800Mm,则制成并联网,正中间一部分同用板墙。齿耙栅隙分成毫米、2mm、5毫米、11mm、15mm、20毫米、30mm、40mm、50毫米等必须规格型号,型号选择由过水流量、提高高宽比、固液分离设备总产量和所分离出来化学物质的样子、颗粒物尺寸来挑选,另外选装不一样的材料。机器设备沟深由客户订制,可依据客户必须及应用具体情况定订制深层。一般不小于0.8米,不超15m。

九、齿耙格栅购买常见问题:
齿耙格栅说白了便是依靠格珊的功效来进行对废水的解决,其关键原理便是根据格珊的功效来对废水中所造成的废弃物,开展分离出来和解决,进而水体不被环境污染,另外间接性也解决了生态环境保护的难题。
齿耙格栅做为现阶段的一种除污机器设备,在销售市场之中十分遭受热烈欢迎,关键被用在各种各样工业化生产废水处理之中,及其生活污水解决区,在一些自来水公司,汽油泵厂之中都可以看到齿耙格栅的影子。在其中是由于齿耙格栅具备许多的实用价值,具备噪音低,能耗小,分离度高,清理力好,工作效能高的特性,可以协助处理许多的难题。
便是由于齿耙格栅具备这般多优点的缘故,才会招来许多的制造行业都来选购齿耙格栅,随着也存有了许多的难题,许多的客户在选购机器设备的情况下不清楚应当如何选择,又或是是对价钱不了解,不一样类型的齿耙格栅的特性等层面存有许多的疑虑,无法选购到合乎的机器设备。

