一、链条式格栅简介:
链条式格栅是经传动装置带动格栅除污机上的两条回转链条循环转动,固定在链条上的除污耙在随链条循环转动的过程中将格栅条上截留的栅渣提升上来以后,由缓冲卸渣装置将除污耙上的栅渣刮下掉入排污斗排出。

二、链条式格栅原理:
链条式格栅的耙齿链运转到设备的上部时,由于槽轮和弯轨的导向,使每组耙齿之间产生相对自清运动,绝大部分固体物质靠重力落下。另一部分则依靠清扫器的反向运动把粘在耙齿上的杂物清扫干净。
链条式格栅按水流方向耙齿链类同于格栅,在耙齿链轴上装配的耙齿间隙可以根据使用条件进行选择。当耙齿把流体中的固态悬浮物分离后可以确保水流畅通流过。整个工作过程是连续的,也可以是间歇的。
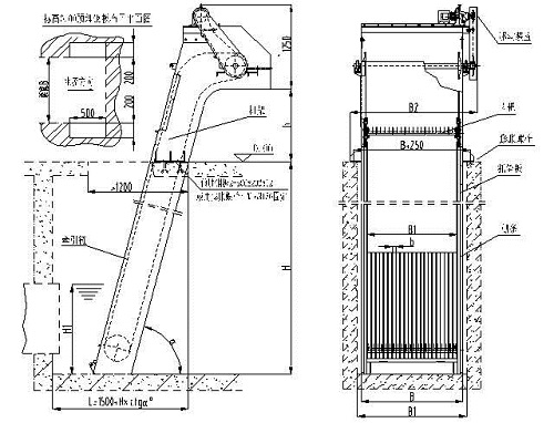
三、链条式格栅结构图:

四、链条式格栅减速机的要求:
链条式格栅能高效地分离固体物质,有效地降低水中悬浮物(SS)、化学耗氧量(COD),减轻后续工序的处理负荷。同时也应用于工业生产中进行固液分离和回收有用物质。今天小编要给您介绍的是链条式格栅对减速机的要求。
新设备在开始加油运转一周之后应当更换新油,将内部的油污冲洗干净,以后每3~6个月更换一次(每天运行8个小时的设备取六个月,连续24个小时运行的取三个月);减速机应当经常保持适当的油位和加注合适的油品,当环境温度在—10℃~0℃时用N46、N68的润滑油,0℃~40℃时用N68、N150、N220的润滑油。

五、链条式格栅故障排查:
排除的方法如下:
1、将电源切断,立即停止设备的运行;
2、查清设备的过载原因,主要是查看是否有杂物卡住耙链,若有立即将其清除;
3、耙齿由于受到重击而变形,需要将其更换或者卸下整形;
4、耙链中的链板条受到磨损或脱落,需要将其更换或修复。

