一、高链式格栅简介:
高链式格栅由传动装置、框架、除污耙、撇渣机构、同步链条、栅条等组成。机内两侧各有一圈链条作同步运转,当链条由除污机上部的驱动装置带动后,耙架受链条铰结点和导轨的约束作平面运动,当耙板运动到除渣口部位时,除渣装置在重力作用下,把耙板上的污物铲刮到除渣口。

该机适用于污水或雨水等水深不超过2米的泵站,以及污水处理厂,以去除污水中粗大漂浮物,对后续工序起保护作用和减轻负荷作用。该除污机为链传动固定式结构,所有传动件全部在水上,防腐性好,便于维护保养。
二、高链式格栅使用注意:
在使用机械格栅之前,工作人员一定要了解一下设备的施工要点,这样才可以确保设备在安装之后正常运行,避免因为安装方法不当而影响到污水处理效果。在安装设备时,应该先做好基础,基础的制作效果对于污水处理工作的进展有很大影响,基础没有做好设备在运行期间也容易发生质量问题。
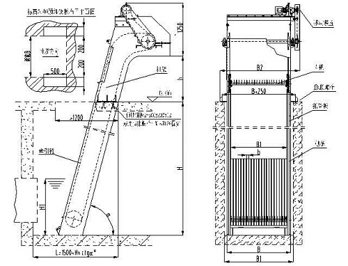
三、高链式格栅结构图:

四、高链式格栅特点:
高链式格栅其结构新颖、占地面积小、运行平稳、安全可靠、能耗低、安装维护方便。广泛应用于各类泵站进水口处和城市污水处理厂拦截并清除漂浮污物,以及在工业废水处理工艺中进行固液分离等。
五、高链式格栅变形:
高链式格栅耙齿变形原因:主要是排洪期污物过多,过于集中,造成单道耙齿负荷过重,耙齿轴变形引发故障。齿耙轴是高链式格栅的重要的运动部件,它同时起到支撑链条防止链脱轨和打捞污物的双重作用,其中间部位是整个机体为薄弱的环节,许多相关问题,如链板扭曲,脱链等问题多是由于齿耙轴的变形而引起的,因此其强度、刚性应得到足够的确保。
高链式格栅耙齿变形应对措施:齿耙轴材料应有足够的直径和壁厚,一般6米以下跨度的高链式格栅宽度,齿耙轴按10000N.m集中载荷校核,其挠度不大于1/250,耙齿轴厚不宜低于6mm.。对于更大尺寸的高链式格栅,可考虑使用多道牵引链条以改善齿耙受力情况,或者通过对齿耙轴中部进行局部加强使之成为变截面受力构件。


