一、回转式除污机简介:
回转式除污机为根据用户需要的过水量及土建渠宽、渠深、需要耙齿间隙等需求定制。设备沟深由用户定制,可根据用户需要及使用实际情况定定制深度。一般不小于0.8m,不大于15m。

二、回转式除污机选用:
1)进水水质、过栅流量、格栅位置。
2)格栅井深度、宽度、过栅流速。
3)安装角度、排渣高度根据进水水质、水深可以确定格栅的材质、种类。根据流量及过栅流速、安装角度可以计算出格栅的宽度。根据格栅使用位置确定栅条间隙。
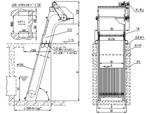
三、回转式除污机结构图:

四、回转式除污机调试:
(1)格栅除污机安装后,按技术要求进行检验,确保其允差值符合规定的指标。
(2)检查和加注润滑油脂。
(3)在无水条件下,格栅除污机空载运行2小时,传动平稳,栅片运动应位置正确、无卡位、突跳现象,过载装置动作灵敏可靠。
(4)进行格栅除污机现场负载试验,在大设计水位条件下,检验清污效果,栅片上的垃圾无回落渠内的现象。

(5)只有在测试合格以后,方可使格栅除污机进入工作。
五、回转式除污机安装:
1、设备可直接安装在预制的钢筋混凝土沟渠中。
2、格栅整机除动格栅片外,一般不需要在现场进行组装。

3、设备安装就位后,当机架与沟渠内两侧存在较大间隙时,可考虑用薄型塑料板加以封闭,以免影响拦污效果。
4、放置格栅的沟渠在施工中,要求渠壁尽量平整垂直,渠底面应保持水平平整。
5、渠壁顶边应按格栅安装基础图的要求预埋200×100×10钢板四块,用于焊接基础螺栓。
6、设备安装就位后,再进行电器控制装置的安装。电器控制系统的设置和调整,由本公司按技术要求派专人进行。

