一、中药废水捞渣机简介:
中药废水捞渣机结构紧凑,整机性能好,通水面积大,运行稳定可靠。操作简单,清污效果好,效率高,寿命长。

二、中药废水捞渣机结构:
(1)驱动装置
中药废水捞渣机的驱动装置位于机架上部,除传动装置外,其余均采用不锈钢材料制造。驱动装置采用轴装式减速机,在机架二侧设置螺旋式调节装置,以作调整传动链条张紧用。驱动电机适用于电源380V/三相/50Hz,防护等级为IP55,绝缘等级为F级,电机额定功率比大实耗功率大10%。具有过载保护装置。传动轴的设计具有足够的强度和刚度,以承受弯矩和扭矩同时作用的载荷。
(2)机架
整个格栅部件直接安装在渠道上,水中的固体物由网板串接成的滤带捕获,送至除污机驱动装置后部的较高位置后排出。同时一个旋转的刷子还对网板进一步清洁。

中药废水捞渣机的机架为采用不锈钢板与型钢焊接成一整体式刚性结构,焊接后的清污机机架为一刚性整体,并具有足够的强度和刚度,在规定水位差的工况下不发生扭曲变形现象,机架材料全部采用不锈钢,二侧板间隔一定距离设置横撑,确保设备安全可靠运行。
焊接后的格栅机架为一刚性整体,具有足够的强度和刚度,在1.0米水位差的工况下不发生扭曲变形现象。机架的两侧与格栅井之间留有间隙,通过机架的两侧橡胶封板来防止漂浮垃圾通过。机架二侧设置安装连接支座,与基础平台之间用膨胀螺栓安装固定。
(3)牵引链及链轮
用于传动的牵引链采用不锈钢制造,链具有足够的断面尺寸,牵引链破断强度不小于大牵引力的5倍。传动用的牵引链轮及导向装置(非链轮),分别置于机架两侧的上部和下部,水下导向装置的形式,在结构上有可靠的设施防止栅渣等污物的缠绕。导向装置是非链轮机构。
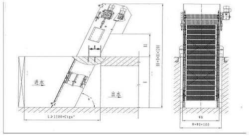
三、中药废水捞渣机结构图:

四、中药废水捞渣机选型:
使用方需提供渠道的宽度(或者设备的宽度)B、渠道的深度H、格栅栅隙b、耙齿材质要求、机架材质要求。
无特殊说明的按常规:安装角度75°,出渣高度800MM,功率标配,板材厚度标配。

