一、食品废水捞渣机简介:
食品废水捞渣机具有自动、点动、急停、切断等控制功能,便利运行与维护保养。具有机械、电气双重过载保护装置。

二、食品废水捞渣机结构:
(1)牵引链及链轮
用于传动的牵引链采用不锈钢制造,链具有足够的断面尺寸,牵引链破断强度不小于大牵引力的5倍。传动用的牵引链轮及导向装置(非链轮),分别置于机架两侧的上部和下部,水下导向装置的形式,在结构上有可靠的设施防止栅渣等污物的缠绕。导向装置是非链轮机构。
(2)网板
网板采用不锈钢制造,网面为规则排列的小孔。网面具有过水与截污的功能,台阶面能截留较大的污物。整个台阶式网板滤带面具有足够的过水通道,以过水面积和流量满足设计要求,污水通过栅隙流速小于1m/s。
(3)清洁刷
清洁刷设置于网板的回程的起点,由单独的减速电机驱动,在滤网运动的同时,对网板外表面进行助卸与清洗,清洗刷毛由尼龙材料制成。
(4)冲洗装置
食品废水捞渣机配置孔板冲刷装置,以确保卸料后的回程孔板不粘附污物,消除对网孔的堵塞。
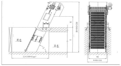
三、食品废水捞渣机结构图:

四、食品废水捞渣机工作方式:
食品废水捞渣机是一种用于水源口拦除固体垃圾的专用设备,它可以连续自动地清除污水中的各种形状的漂浮物。当格栅链在减速机驱动机构的3@动下,安工作方向做循环运动,此时水僧中的水流经齿耙栅隙,耙齿格栅对水中的固体杂物进行拦截,井由运动中的耙齿将其捞起。
随耙齿链一起向上运行到达顶部后,通过链轮和弯轨的导向,使每组耙齿之间产生相对运动,达到目清目的,致使大部分固态杂物因自身重力而落下,另一些枯附在栅缝中的杂物在反转清洗刷的作用下把耙齿的杂物洗刷千净,并均匀地落入螺旋输送机中.由于把齿格栅涟是一个封闭式循环机构:所以它可以自动连续地工作,对水中漂浮杂物不断地进行清除。
五、食品废水捞渣机安装调试:
1、安装食品废水捞渣机之前,需要提前选择好位置,选择场地需要一定的平整性,这样在食品废水捞渣机工作中减少震动等。
2、如果场地选择困难,在一定必要的情况下,选用螺丝或者螺栓等加以固定。
3、在食品废水捞渣机运转之前,一定要其表面没有任何物体,这是为了防止其在工作中出现强烈震动的现象。运转前,还要提前检查设备各部分零部件是否有松动的情况或者脱落的现象,如果发现,应该及时做好补救方法。如果在检查中发现设备状态不是佳的,需要及时维修,一切正常方可投入使用。
4、食品废水捞渣机参数要设定好,调试好食品废水捞渣机保护装置,防止出现超负荷运转,给食品废水捞渣机带来损伤。
5、压力表,阀门等控制装置正常,能够观察到设备运行情况,并时间采取维护措施。

六、食品废水捞渣机安装调整说明:
1、食品废水捞渣机在起吊安装前要检查各埋件碳钢板位置、规格型号是否符合机械设备要求,应保障;
食品废水捞渣机井两侧面与食品废水捞渣机井平面设计图应垂直,其平面度误差不可以超出20毫米。
食品废水捞渣机井两侧应垂直面,其平整度不超过20毫米。
带锚脚的两埋件碳钢板平面设计图应与食品废水捞渣机井顶部综合服务平台面平。
2、由于本身制做时没有提供沟的深层次,食品废水捞渣机放入沟内,较正角度后,把食品废水捞渣机支座底部放进大部分,侧面与食品废水捞渣机架电弧焊接电焊焊接及时,其安装角度须符合方案设计要求,确保齿耙清污机的安装平面度小于1/100mm,接着再拧紧支脚螺丝帽(没有埋件碳钢板,可用膨胀螺栓固定不变)。
3、卸区安全系数罩,缓解压力涨紧链条链轮,卸除减速机端传动系统传动链条,通电试运转,看减速机的变为是否与安全系数罩方向相一样,严禁旋转。

七、食品废水捞渣机特点:
1、自动化技术技术实力高,提取效率高,噪音,推动力消耗。
2、耙齿采用不锈钢板生产加工,耐腐蚀耐高温特点好。
3、耙齿构成删条面‚多加不锈钢板材挡泥板‚不易堵塞。
4、耙齿节径有100、150二种型号规格150节径可用大栅隙。
5、可按务必‚配备各式各样栅隙。栅隙从1-50毫米可以选用。
6、机宽从300-2500m供顾客选型。
7、全部机器设备一体化安装‚运作高精密。

