一、内进流孔板格栅简介:
内进流孔板格栅是属于内进流孔板格栅除污机的一种类型,同属于环保设备技术领域,它主要是用在污水处理方面,比方自来水职业、电厂进水口等。

二、内进流孔板格栅特点:
1、耙齿组合成栅条面,外加不锈钢护板,不会堵塞。
2、耙齿节距有100、150两种规格150节距适用于大栅隙。
3、可按需要,配制很多栅隙。栅隙从1-50mm可供选用。
4、机宽从300-3000mm供用户选型。
5、整机一体安装,运转精度高。
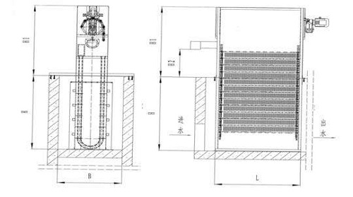
三、内进流孔板格栅结构图:

四、内进流孔板格栅用途:
1、内进流孔板格栅用于造纸、屠宰、皮革、制糖、酿酒、食品加工、纺织、印染、石化等工业废水处理中,去除悬浮物、漂浮物、沉淀物等固态物质;
2、内进流孔板格栅用于造纸、酒精、淀粉、食品加工等行业中的回收纤维、渣料等有用物质;
3、内进流孔板格栅用于城市污水处理中代替初沉池。
五、内进流孔板格栅运行:

内进流孔板格栅可实行手动/自动二种操作模式,自动控制可以通过定时与超声波装置进行水位差控制,一般与带式输送机、压榨机实行联动操作,并提供标准的现场控制接口。
1、合上电源,检查电源电压,应符合要求。
2、手动
手动于调试、检修、处理较大异物和紧急故障时使用。应将“状态按钮”置于手动位置。启动除污机,观测机组各部分运转情况,捞污、排渣、翻耙等动作应准确到位,无异常声响、振动,链条应传动平稳。
在手动状态下正常运转至少10分钟,方可切换为自动状态。在自动状态中,操作者应观察至少10分钟,方可离开。操作者的常规巡视时间间隔应不大于半小时。除污机清捞的垃圾,由带式输送机运至下一工作区域,现场应及时清理,保持干净。

工作结束后将格栅除污机的小车停在规定位置。拔掉插头,与设备断开即完成手动操作。
3、自动操作步骤
在这种模式下,开/停耙斗按预先设定的位置和程序连续运行,一般有格栅前后水位差和定时两种控制方式,具体步骤如下:在控制面板上设定成自动运行状态。
定时控制:可根据具体情况设定间隔时间和运行时间。液位控制:在控制箱上设定格内进流孔板格栅前后液位差大于设定值时自动开始清捞,当液位差小于设定值时自动停机。

