一、孔板格栅简介:
孔板格栅采用低摩擦的塑料密封翅和低摩擦的塑料轨道面接触密封。这种密封与网格版板结构相结合,为整个回转移动网板提供有效的密封。每一个网板之间,都有栅渣提升阶梯,这是一个极好特点。格栅前面的水流由通过滤网框架与土建墙之间的挡板形成。

二、孔板格栅工作原理:
在发出工作指令后,钢绳驱动装置开动放绳,耙斗从高位置(上一循环撇渣结束处)沿导轨下行,撇渣板在自重的作用下随耙斗下降。当撇渣板复位后,耙斗在开闭耙装置(电动推杆)的推动下通过中间钢绳的牵引张开并继续下行直至抵达渠(井)底下限位,小车停动而钢绳松驰,松绳开关动作,启动电动推杆后缩,放松中间钢绳,使耙斗在自重的作用下闭合。
待耙齿插入格栅间隙后,钢绳驱动装置开动收绳,进一步强制耙斗完全闭合后耙斗和斗车沿导轨上行,清除并输送被格栅拦截的栅渣,直至触及撇渣板,在两者相对运动的作用下,栅渣被撇出经导渣板落入盛渣桶(或输送机),完成了一个工作循环。在工作过程中,如遇意外障碍导致钢绳驱动装置过扭,当其扭距达设定值时,即自行报警停机;如耙斗开闭装置过载,电动推动杆推力上升达设定值时,推杆过力矩开关动作以确保系统安全。
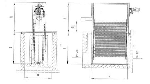
三、孔板格栅结构图:

四、孔板格栅停机:
1、正常停机在切断电源后应按设备要求保持耙斗的停留位置合适,各按钮等应复位,并用高压水把残留在除污机各部位上的垃圾冲洗干净,并按要求涂上润滑剂。
2、在运行过程中,如过载时应联动液压推杆开合导轨,重复运行排除障碍,或因其它故障造成机组停止工作的情况,自动报警系统应能报警或自动停机,操作人员应立即到位,根据故障情况切断电源,及时排除故障,检查有关部件,如有损伤,及时修复。待一切正确无误,才能再次启动。

3、除污机每日至少运作半小时,并按规定在各润滑点定时、定量加注指定型号的润滑剂,同时保持机组表面油漆完整,无残留垃圾。
五、孔板格栅故障维修:
( 1 )用手摇把插入电机尾部方样内,将断裂耙齿所在的耙齿轴摇至检修孔,或采用电控箱上的点动开关控制电机减速机,将断裂耙齿所在的耙齿运转至检修孔。
( 2 )卸去检修孔边板手把。

( 3 )用铁棒将耙齿链卡住。
( 4 )用卡簧钳将断裂耙齿所在的两根耙齿轴两端的卡簧卸去。
( 5 )将两根耙齿轴抽出,去除断裂的耙齿,装上新耙齿,再将耙齿轴插入,依次将卡簧装上。
( 6 )装好检修孔边板手把即可。

